你家裝修的時候究竟發生了什麼_風聞
观察者网用户_239377-2019-05-16 21:27
▼
-文字稿-
這是你五萬一平的家,140m² ,三室兩廳,還有儲物間。看起來有模有樣,但這只是個渲染圖,現在它長這樣。

三個月後,開放商會把這個毛坯變成精裝房,它們是怎麼做的?
我們找到了藍城集團下屬公司藍城裝飾為這套户型設計的 81 張施工圖紙和 187 頁的《精裝修工程施工技術標準》,現在,我們可以開始搞裝修了。

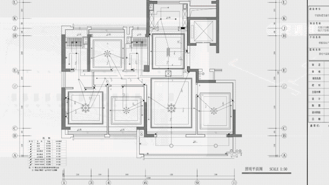
精確的施工圖紙是一切的基礎,我們可以把施工圖分為平面圖、立面圖、節點圖和機電圖。
平面圖能幫助我們建立對室內空間的整體概念,包括房間佈局、牆體尺度,地面和頂面的佈置方案,家電傢俱燈具開關插座的尺寸和位置,都分別標註在了這 8 張平面圖中。

立面圖和節點圖可以幫助施工團隊看到更多細節。在這張立面索引圖中,我們可以看到 39 張立面圖,分別對應房子裏的 39 面牆。

41 張節點圖是關於吊頂、牆面、防水、鋪裝等複雜結構的詳細信息。比如地面佈置圖裏主卧衞生間的地面,就索引到了 7 號節點圖。

在這張圖中,我們可以看到衞生間地面的詳細結構,包括防水層、找平層、結合層和最上面的瓷磚和石材飾面。

這裏的 i 表示坡面高度和地面長度的比值是 0.3%-0.5%,讓水可以自然流入地漏。
而照明、配電、給排水方案則需要在這 11 張機電圖紙中做好規劃。

以給排水為例,最重要的是這張包括冷水熱水污水廢水 4 套獨立系統的管線圖。
以熱水系統為例,這是水管的型號,這是水管的高度信息,熱水器通過佈置在天花板的水管,與廚房和兩個衞生間的五個出口相連。

有了圖紙就可以開始施工了,我們根據這套施工圖紙建了一個三維模型,接下來,我們將在這個模型中完成裝修。

第一步是放樣。
通過纏繞墨線的墨斗,在牆面和地面畫出各種參考線,插座、開關、傢俱的位置和水管電線的埋線位置。

根據這些參考線,用開槽機鑿出管槽,埋入暗盒,就可以開始佈置水管電線了。

水管的裝配相對簡單,按照圖紙,用 U 型扣把水管固定在天花板,沿着挖出的管槽連接就好。

今天最常見的水管材料是 PPR ——共聚聚丙烯(Polypropylene-Random)。
安裝時需要用熱熔器同時把 PPR 水管和接頭加熱到 260 度,再迅速把水管插入接頭,與其他水管連接。這種類似焊接的連接方案可以有效的避免水管漏水。

而電路系統則複雜一些。
在中學物理中我們就學過,火線連接開關零線連接燈泡,就構成了一個閉合迴路。
在這張配電系統圖中,我們可以看到 14 條電迴路。這些是火線和零線的參數,WC 表示電線埋在牆內,SCE 表示電線鋪在天花板,FC 表示鋪在地板。

這 14 條電路的起點在配電箱。
這兩根是從室外接入的入户線,在配電箱中分流出 14 個迴路,每個空氣斷路器的開關對應一個迴路,n1 -n3 是對應三個區域的照明, c1-c9 是 9 組插座,k1 和 k2 是空調。

根據這 9 種不同的開關類型,需要配置不同數量的火線和零線,這張照明平面圖中,每條線上標註的數字就對應電線的數量。

以這個次卧房間為例,我們可以進一步瞭解細節。
房間裏有兩個開關面板,A 面板是一個單聯雙控開關,B 面板是一個單聯雙控開關和兩個單控開關。

雙控的意思是 A 和 B 都可以控制房間中間的吊燈,B 的另外兩個開關還可以分別控制兩組射燈。
因此,連接 A 面板的有 3 根火線,其中一根是進線,兩根連接 B 面板。而 B 面板則需要 5 根火線和 1 根零線。

除了這 14 條 220V 強電迴路之外,還有網線、電視線、煙霧報警器等 12 條 36V 的弱電迴路。
搞定水電之後,我們需要在水管槽、廚房、陽台、衞生間刷上防水塗料,最常見的材料是這種黑色的粘稠液體——聚氨酯。

通過與空氣中的水分子接觸,聚氨酯材料會固化,形成一層堅固的防水膜。
閉水試驗可以驗證防水效果,在房間裏蓄水到 10-20 mm, 48 小時不發生滲水就算通過。

之後就是吊頂了。吊頂的本質是再造一層天花板,隱藏室內頂面上的水管和電線,修飾橫樑,增加空間層次。

這一塊常見的輕鋼石膏板吊頂,由輕鋼條組成的框架結構通過吊杆懸掛在天花板上。框架結構包括主龍骨、副龍骨、邊龍骨和橫撐龍骨,一個能承受均布荷載的受力模型。

之後,用自攻螺絲把多塊石膏板釘在龍骨上,塗上防鏽漆,用嵌縫膏填補石膏板的板間縫隙,吊頂工程就完成了。
接下來是抹灰,用一層 10-20mm 厚的水泥砂漿讓吊頂、牆面和地面變得平整。

這需要通過灰餅和標筋來精度的控制厚度,灰餅是一個 5×5cm 的 正方形凸點,把上下灰餅用砂漿鏈接,就成了標筋,標筋的間距在 1m 左右。
之後,在標筋之間分層塗抹水泥砂漿,最後刷一層填坑的膩子粉,抹灰就完成了。

另外,像混凝土牆和磚牆這種不同材料牆體的連接處,還要加上鋼絲網防開裂 。
抹灰完成後,刷上乳膠漆,鋪地板地磚,安裝插座房門馬桶櫥櫃,加上傢俱你家就可以住人了。

裝修這件事有趣的地方在於,消費者很難直接感受到裝修質量的好壞,直到幾年後,屋頂漏水,地板開裂,牆面掉漆,頻繁跳閘,才能意識到自己被坑了。

這也導致商家面對一輩子也就裝修一兩次的消費者時,根本不需要考慮質量和口碑,只需要拼廣告拼價格吸引到客户就好。
這種亂象也讓住建部開始要求開放商直接交付精裝房給購房者,不讓中間商賺差價。在浙江省 2016 年發佈的兩份文件中,就要求各縣市中心城區的所有新建住宅都必須實現全裝修。

但這帶來了更多問題,2018 年,浙江省消協受理的裝修類投訴就上升了 52%。這是因為相比蓋房子,全裝修複雜很多,需要多專業多環節緊密配合。

如果不找專業公司合作,中小開發商們自己裝修的結果,很可能是沒完沒了的 1818 黃金眼記者電話。
