北京69㎡搞三房,還是招商會整活_風聞
风声声-地产风声官方账号-听,这风声,好像在说秘密57分钟前

文/狗蛋分蛋
今年北京“未開先火”的樓盤不少,除了海淀的幾個神盤外,最近通州八里橋,又冒出個朝棠攬閲。
上週末,朝棠攬閲樣板間開放,據説,兩天到訪接近1800組客户,900多套房源,現場認籌250多套。還沒正式開盤,近30%的房源先被鎖定了。
有人開玩笑説,估計全朝陽的剛需都跑去看房了。
7月20日,朝棠攬閲正式開盤,據項目公佈數據,當天勁銷18.6億元,去化接近九成。當然按照北京樓市以往的慣例,這個數據大概率會注點水,究竟有多少水分,還得等網籤數據。
好房子政策影響下,北京買房人變得不好糊弄,開發商沒點壓箱底的手段,真抓不住買房人的眼球。
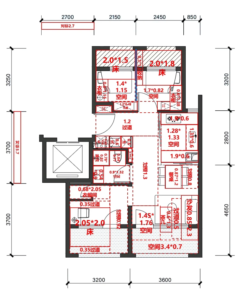
這次,買房人是衝着一個“神户型”去的。
在69㎡這個北京最“剛”的面積段,朝棠攬閲上了三房配置。項目緊鄰通惠河,總價最低不到400萬,也就是説——按15%首付比例來算,最低55萬,就能上車一個能通勤朝陽的三房“河景房”。
這樣的性價比,對急着買房的朝陽羣眾來説,是巨大誘惑。
據説,樣板間開放當天,69㎡的小三房已經被認購光了,這和放量太少也有關係,首開只推了55套,手慢無。
户型數量規劃這塊,開發商需要一個平衡,69㎡的小三房對購房者來説是性價比超高的“神户型”,但對開發商而言,可能是賺不到錢的户型。
項目主打86㎡三房和101㎡四房户型,69㎡户型只佔項目總量的很小一部分。客户來都來了,買不上69㎡,可能會去看看其他小面積段的主力户型。
這叫舍小搏大,鐵柱打趣,項目背後一定有釣魚大佬指點,這“打窩”手法太專業。
看完户型圖,大概能明白,朝陽羣眾們為啥心甘情願“咬鈎”。
這次招商蛇口確實做出了點東西。
雖然户型面積只有69㎡,但該有的功能全有,廚房足夠兩人下廚,次卧也留了衣櫃空間,主卧甚至還能做個衣帽間。

如果是三口之家,預算400萬以內,有朝陽通勤需求,那朝棠攬閲的69㎡可能就是近年北京最值得下手的户型了。
可惜的是,這種户型沒幾套。
據説,項目開盤小户型秒沒,更大面積段户型則稍微尷尬。
相比於69㎡户型,它們確實沒那麼驚豔。
比如86㎡的户型,是過去常用的一字排布,客廳擺角,U型廚房,後期把牆打了可以做開放式。
雖然顯示建面比69㎡户型大了17㎡,但實際排下來就多了個廁所,感覺尺度感上,沒有和前者拉開差距。

通州新規後入市的項目,在好房子政策的影響下已經卷麻了,剛需也不例外。包括朝棠攬閲的兄弟項目“雲璟攬閲”,通州新剛改盤還有花溪雲錦、國譽頌等。
同樣的上車門檻,市場上基本都有更好的選擇。
像國譽頌,朝棠攬閲89㎡同樣的總價,可以上車國譽頌105㎡户型,不僅面積更大,還是個四葉草户型。

100㎡以上户型,這次開盤餘量大,尤其是124㎡感興趣的不多。
競品壓力是一個其中原因,根源在於剛需盤中的改善户型,往往會因為不夠純粹,在後期轉手時賣不上價。
2023年招商蛇口首入通州,加上朝棠攬閲已經有三個項目,算是北京房企裏,對通州市場理解比較深刻的。
這次選在八里橋做剛需盤,招商蛇口有自己的想法。
一方面,八里橋近年新盤大多選擇做了大平層產品,比如縵雲ONE,定位改善偏豪宅。
做剛改,有效避免了同質化競爭。
另一方面,對於大部分人而言,這裏更適合壓縮成本上車。
八里橋的房子營銷時,大多會吹一吹通州,吹一吹八里橋各種規劃,好為溢價找個理由。
作為副中心,通州每年基建投入上千億,並且這種大規模投入還會持續10年以上,潛力確實在線。
問題是,八里橋的位置有些尷尬,位於通州和朝陽的交匯處。
兩區交匯,大多爹不疼媽不愛,加上通州目前發展重點在運河商務區,預計未來很長一段時間都不會變,相比之下,八里橋的發展優先級不算高。
這就導致有些“餅”,買房人容易吃不到嘴裏。
因此,通勤能力和性價比,才是八里橋目前能看的最大優勢。
低總價,低門檻才能更好把握板塊優勢,即便需要後期置換,便宜,在二手市場也更有話語權。這個角度看,招商蛇口確實把通州樓市玩明白了。
兩區交匯,除了吃餅難,一些不利因素的處理上,也容易掉鏈子。
朝棠攬閲目前主要的不利因素有三個,一是頭頂的高壓線,二是22號地鐵線可能會從項目西北角穿過,三是航空噪音。
去看房時,和不少客户聊天,這也是他們比較擔憂的點。
高壓線問題,據現場工作人員説,後期線路會做下埋處理,下埋後,對項目幾乎沒有影響。這是個老問題了,當地居民已經反饋多年,有人説“年年有計劃要埋,年年沒動作。”
客户們擔心,項目承諾又變成大餅。
地鐵線下穿問題,主要就是做好防震和隔音。
鐵柱倒覺得,處理高壓線和地鐵線下穿問題不難,畢竟新盤要開了,如此明顯的不利因素會嚴重影響去化,招商蛇口應該會想想辦法。而地鐵線下穿也不罕見,項目大概率有現成的案例可以借鑑。
幾個不利因素中,挑戰最大的是航空噪音。
實測航班集中的時候,每隔幾分鐘,就能明顯聽到飛機發動機的轟鳴聲,它不是局部能聽到,而是對項目幾乎所有的樓棟都有影響,處理起來相對麻煩。
期待招商蛇口可以拿出一套行之有效的解決方案。
最後,不少買房人還在糾結板塊潛力。
其實看完上文就能明白,這完全沒必要。
八里橋有自己的一套價值邏輯,硬去蹭通州發展紅利的概念,最後也許就是期待越高,失望越大。
通勤是朝棠攬閲可以確定的優勢,下面就是拋開可能“買不到”的69㎡户型,其他户型有沒有性價比的問題。
從現場看到的價格,項目首次開盤均價6萬元左右,部分户型下探到了5字頭,相比之前傳言的6.2萬元/㎡,能感覺到招商這次是帶着誠意來的,但可能還不夠。
未來一段時間八里橋板塊土地供應量不小,離項目比較近的東灣項目,當年開盤價6.5萬元/㎡,但是這兩年隨着大量新項目入市,跌幅最高超過18%。
目前板塊內新房5.6-5.8萬元/㎡是道坎,超過太多容易踩高。