濟南東部擬建大載重火箭總部及總裝製造基地
guancha
8月26日,濟南市自然資源和規劃局官網一項建設工程規劃許可批前公示顯示,濟鋼集團有限公司計劃在濟南市臨港經濟開發區建設“大載重火箭總部及總裝製造基地項目”。
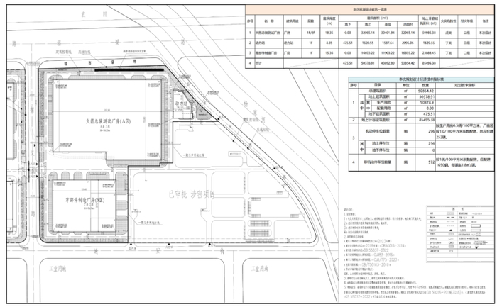
該項目位於臨港經濟開發區温梁路以南、楊家河西路以西、智義路以東、通安街以北區域,由中國航空規劃設計研究總院有限公司負責設計,總建築面積50854.42平方米。根據公示信息,項目將建設三大主體建築:火箭總裝測試廠房,建築高度18.35米,地上計容建築面積59986.38平方米;動力站,建築高度8.35米,地上計容建築面積1620.55平方米;零部件製造廠房,建築高度15.35米,地上計容建築面積23888.45平方米。
濟鋼集團作為濟南空天信息產業鏈主企業,其與深藍航天合作建設了深藍濟鋼長清測試基地,專注於火箭發動機及動力系統測試。目前已建成三大測試台,即101火箭發動機測試台,測試能力 20噸推力,103火箭動力系統測試台,設計推力600噸;102雙工位火箭發動機測試台,測試能力130噸。濟鋼集團“大載重火箭總部及總裝製造基地項目”的建設將進一步提升濟南市在航空航天領域的產業佈局,為空天信息產業發展注入新動力。


(記者:羅曉飛 )